139 655 ₽/м²
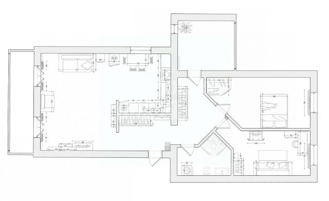
Просторная светлая и теплая 3-х комнатная квартира на 10-м этаже с мебелью: шкаф-купе в коридоре, в спальне гардеробная с сейфом, кровать с прикроватной тумбочкой, косметический столик с зеркалом, гардеробная в коридоре, бытовая комната со стиральной машиной и бойлером, бойллер в туалете, кухонный гарнитур со встроенной посудомоечной машиной и электроплитой, холодильник, телевизор на кухне, в детской комнате диван, компьютерный стол и стенка. Отличная панорама города с лоджии. Рядом с домом школа, детсад, супермаркеты, остановки общественного транспорта. Свободная продажа, один собственник, никто не прописан. Продается 3-комнатная квартира в Томской области, есть мебель .











































































