Мы используем куки-файлы. Соглашение об использовании
Помещение свободного назначения, от 82,6 до 600 м²

Сдается помещение свободного назначения, 82,6 – 600 м²

Площади82,6 – 600 м²
Этаж3 из 5
ПомещениеСвободно
Доступно 5 площадей
82,6 м²
4 этаж
66 080 ₽/мес.
9 600 ₽/м² в год
150 м²
1 этаж
127 500 ₽/мес.
10 200 ₽/м² в год
350 м²
-1 этаж
238 000 ₽/мес.
8 160 ₽/м² в год
589 м²
2 этаж
471 200 ₽/мес.
9 600 ₽/м² в год
600 м²
3 этаж
520 000 ₽/мес.
10 400 ₽/м² в год
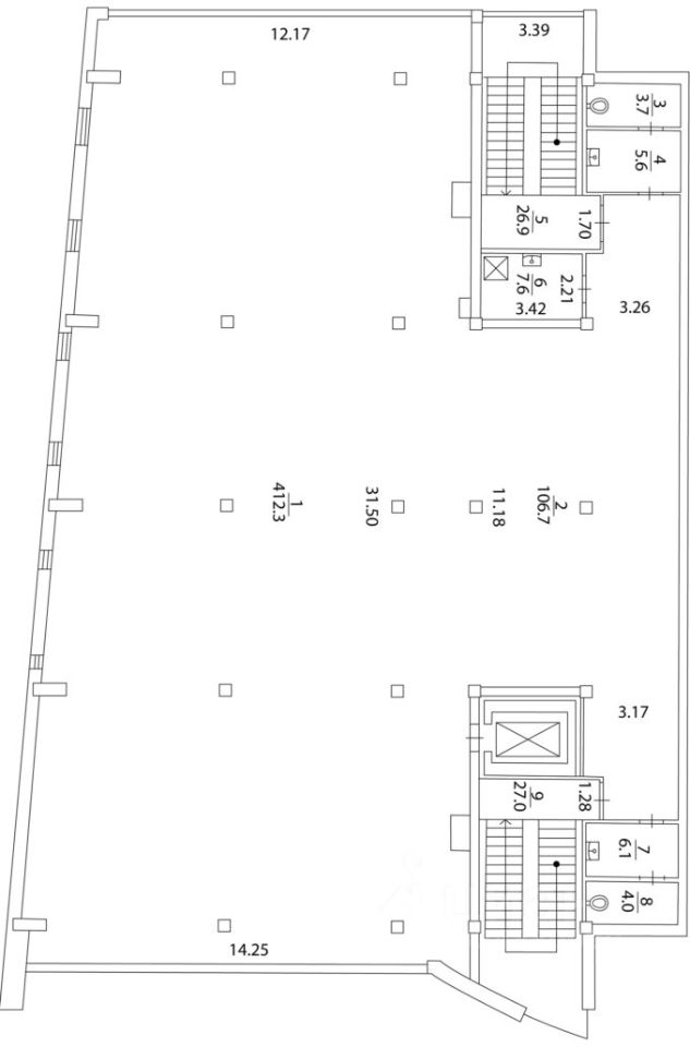
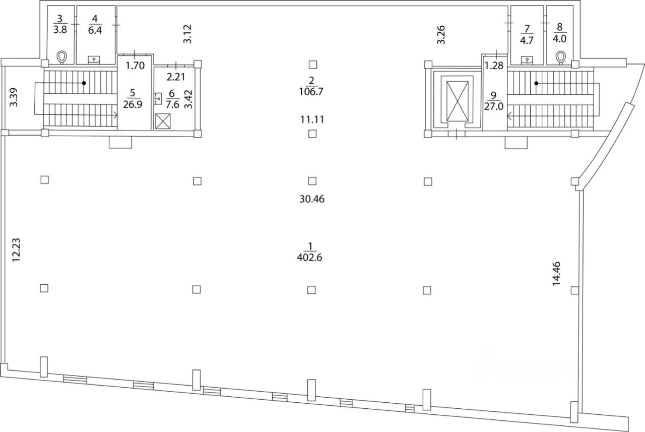
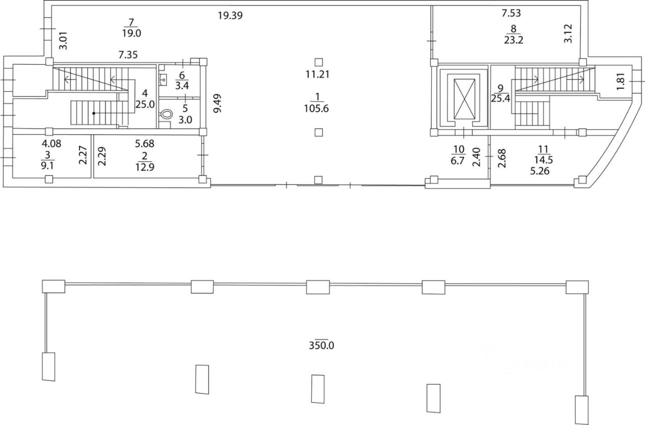
Сдаются помещения в пятиэтажном административно-торговом здании Центр Мира в городе Томске. Современный бизнес-центр высочайшего класса А. Мы предлагаем для аренды качественные помещения разных площадей с высокими потолками, свободной планировкой, пассажирским лифтом, пандусом и развитой транспортной сетью. Свободно порядка 1 500 кв.м.. Цоколь 354 кв.м., первый этаж 150 кв.м., второй и третий этажи по 500 кв.м. каждый, на 4 этаже выход на эксплуатируемую кровлю, которую можно использовать как летом, так и зимой. Рассмотрим все виды использования: офисы компаний или call-центра, госучреждения, магазины, танцы, фитнес, спорт, компьютерные клубы, агентства, фудкорты, пространства свободного назначения и другое. Как частично, так и здание целиком. Здание расположено в центре района Каштак в Томске, на центральной улице района, красная линия, с населением более 100 тысяч человек. Других таких свободных помещений в районе нет. Остановка общественного транспорта в 100 метрах, собственная парковка с круговым проездом. Неподалеку располагаются ТЦ Мирамикс, ТЦ Волна, Лента. В пешей доступности банкоматы, места общественного питания и т.д. Здание свободно целиком, можно занять как всё пространство, так и этажи отдельно. Здание располагается в центре пр.Мира (город Томск), что обеспечивает очень плотный автомобильный и пешеходный трафик. -Хорошее освещение; -Горячее и холодное водоснабжение, канализация; -Центральное отопление (новые радиаторы); -Пожарная и охранная сигнализация; -Вентиляция с подогревом; -Интернет, телефон; -Охрана, видеонаблюдение; -Отдельная входная группа; Помещения сдаются собственником, что гарантирует юридическую чистоту сделки. Имеется вся необходимая техническая документация: свидетельство о собственности, технический и кадастровые паспорта. Договор аренды прямой, без посредников! Возможность проведения ремонта, внесения изменений в планировку, установки доп. оборудования и прочие доработки обсуждаются в индивидуальном порядке. Можем предоставить юридический адрес!
lock

Войдите или зарегистрируйтесь
для просмотра информации

Просматривайте условия сделки и всю информацию об объекте
Сохраняйте фильтры в поиске и не вводите заново
Доступ к избранному с любого устройства
Неограниченное добавление в избранное
Позвоните автору
Вам ответят на все вопросы
Остались вопросы по объявлению?
Позвоните владельцу объявления и уточните необходимую информацию.
  • Инфраструктура
  • Похожие рядом
  • Общая площадь600 м²
Центральное отопление
Помощь надёжных риелторов
Риелтор партнёр Циан поможет купить или продать любую недвижимость
Управляющая компанияID 137271478
  • 4 месяца на Циане
  • 28 объявлений
  • 66 080 – 520 000 ₽/мес.

    Прямая аренда (от года), минимальный срок аренды 11 месяцев, доступны арендные каникулы, предоплата за 1 месяц

    от 991 до 7 200 $/мес.
    от 826 до 6 000 €/мес.
    Цена за метр
    от 8 160 ₽ в год
    Налог
    НДС включен: 93 770 ₽
    Комиссия
    нет
    Коммунальные платежи
    не включены
    Эксплуатационные расходы
    не включены
    Управляющая компанияID 137271478