Мы используем куки-файлы. Соглашение об использовании
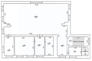
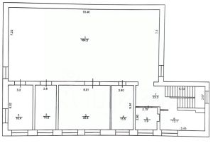
Площадь2 118 м²
Этажность3
Номер объекта: 537683. Вашему вниманию здание производственной, складской торговой направленности. Первая линия, круговой проезд для грузового транспорта, парковка. Здание состоит из двух частей: 1. Производственно-складской блок общей площадью 1170 м.кв. -Высота потолков 10 м, ширина здания 17,85м, длина 66 м., есть кран балка на 10 т. -ровный бетонный пол 2. Офисно-торговая часть из 3 этажей свободной планировки общей площадью 1000 м.кв В здание есть газ. Сделаем ремонт под ваши запросы! Рассмотрим вариант сдачи меньшей площадью. Звоните, отвечу на ваши вопросы!
lock

Войдите или зарегистрируйтесь
для просмотра информации

Просматривайте условия сделки и всю информацию об объекте
Сохраняйте фильтры в поиске и не вводите заново
Доступ к избранному с любого устройства
Неограниченное добавление в избранное
Позвоните автору
Вам ответят на все вопросы
Остались вопросы по объявлению?
Позвоните владельцу объявления и уточните необходимую информацию.
  • Инфраструктура
  • Похожие рядом
Приточная вентиляция
Центральное отопление
Помощь надёжных риелторов
Риелтор партнёр Циан поможет купить или продать любую недвижимость
130 000 ₽/мес.

Прямая аренда (от года)

1 778 $/мес.
1 526 /мес.
Цена за метр
737 ₽ в год
Налог
НДС включен: 23 442 ₽
Комиссия
нет
Коммунальные платежи
не включены
Эксплуатационные расходы
не включены
Агентство недвижимости
Документы проверены