Мы используем куки-файлы. Соглашение об использовании
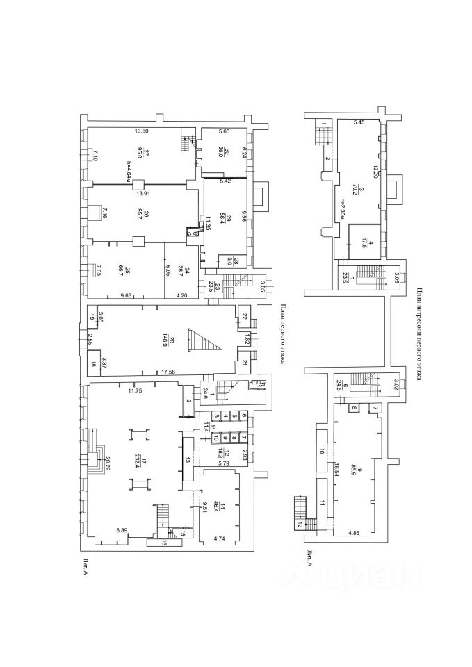
Площадь4 180,6 м²
Этажность2
Отдельный вход с пр. Ленина. Центр города (напротив ЦУМа), красная линия, огромный пешеходный и автомобильный трафик. Есть вентиляция. Есть отдельный выход и с заднего крыльца - огромный двор, любая фура заедет на разгрузку, есть парковочные места.
lock

Войдите или зарегистрируйтесь
для просмотра информации

Просматривайте условия сделки и всю информацию об объекте
Сохраняйте фильтры в поиске и не вводите заново
Доступ к избранному с любого устройства
Неограниченное добавление в избранное
Позвоните автору
Вам ответят на все вопросы
Остались вопросы по объявлению?
Позвоните владельцу объявления и уточните необходимую информацию.
  • Инфраструктура
  • Похожие рядом
Приточная вентиляция
Местное кондиционирование
Центральное отопление
Помощь надёжных риелторов
Риелтор партнёр Циан поможет купить или продать любую недвижимость
500 000 000 ₽
6 636 159 $
5 659 547
Цена за метр
119 601 ₽
Налог
НДС включен: 90 163 934 ₽
Агентство недвижимости
Документы проверены
На Циан
7 лет
Объектов в работе
67