Мы используем куки-файлы. Соглашение об использовании
Площадь104 м²
Этажность2
КлассB
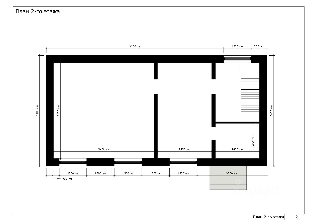
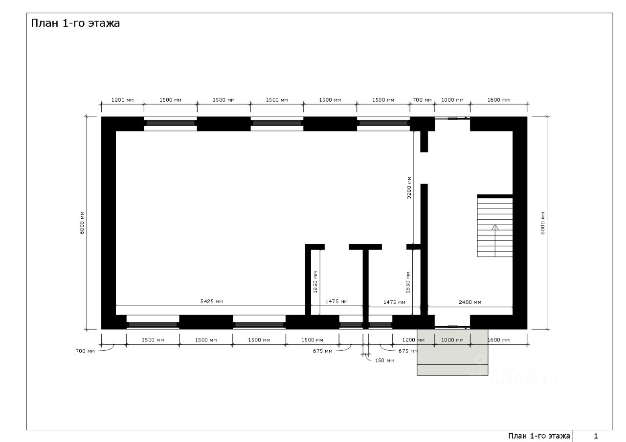
Продается здание в отличной локации. Продается юридическое лицо (или объект недвижимости от юрлица) с зданием общей площадью 104 м² и земельным участком 1 сотка. Ключевое финансовое условие: Текущая задолженность компании составляет 4 300 000 ₽. Эти долги будет погашать новый собственник в рамках сделки. После закрытия всех обязательств покупатель получит здание и земельный участок Общая договорная стоимость объекта рассчитывается, исходя из этих условий. Это возможность приобрести актив ниже рыночной стоимости! Почему это выгодно и безопасно: Все долги прозрачны и известны заранее Вы приобретаете объект, который уже приносит доход и имеет значительный потенциал. Здание идеально подходит для сдачи в аренду как: Апартаменты / гостевой дом (2-й этаж: 2 комнаты + санузел). Коммерческое помещение (1-й этаж: open-space 50 м² + санузел, 2 входа). Постройка мансардного этажа позволит увеличить площадь здания на 50м2 Преимущества объекта: Отдельные входы: Вход с улицы и со двора. Возможность раздельной сдачи. Парковка: Асфальтированная стоянка на 3 авто перед домом + отдельная парковка на 2 авто и зона разгрузки во дворе. Коммуникации: Высота потолков 2.7 м. Свет 15 кВт (есть возможность увеличения до 30 кВт). Центральное отопление. Состояние: Во всех помещениях выполнен качественный косметический ремонт. , поменяны все внутренние инженерные сети). Готов к въезду и началу работы. (смотрите видео) Планировка: 1-й этаж: 50 м², единое светлое пространство + санузел. Идеально под офис, магазин, кафе, салон. 2-й этаж: 50 м², две изолированные комнаты + санузел с ванной. Идеально под апартаменты, хостел, студию. Уникальная локация и инфраструктура (все в шаговой доступности): Для жильцов/гостей: Гимназия 16, 2 детских сада, набережная реки Томь (300 м). Для бизнеса и клиентов: Центральный рынок (300 м), множество магазинов, аптек, пунктов выдачи заказов. Для спорта и отдыха: Спорткомплекс "Юность", стадион, каток, спортивные площадки (все в 200 м). Транспортная доступность: Остановки общественного транспорта в 300 м. Инвестиционная привлекательность: Быстрая окупаемость за счет двух независимых потоков аренды. Потенциал роста доходности: возможность увеличения арендной ставки, перепрофилирования под более доходный бизнес (мини-отель, коворкинг, фитнес-студия и т.д.). Стабильный актив в центре сложившейся инфраструктуры. Идеально для: Инвестора, предпринимателя, который хочет получить готовый, доходный актив без долгосрочных строительных и ремонтных работ. Формат сделки: Сделка происходит через покупку/продажу юридического лица со всеми активами. Оформление за 3 дня через нотариуса.
lock

Войдите или зарегистрируйтесь
для просмотра информации

Просматривайте условия сделки и всю информацию об объекте
Сохраняйте фильтры в поиске и не вводите заново
Доступ к избранному с любого устройства
Неограниченное добавление в избранное
Позвоните автору
Вам ответят на все вопросы
Остались вопросы по объявлению?
Позвоните владельцу объявления и уточните необходимую информацию.
  • Инфраструктура
  • Похожие рядом
Приточная вентиляция
Центральное отопление
Помощь надёжных риелторов
Риелтор партнёр Циан поможет купить или продать любую недвижимость
СобственникID 92082881
    7 400 000 ₽
    98 668 $
    84 117
    Цена за метр
    71 154 ₽
    Налог
    УСН
    СобственникID 92082881