Мы используем куки-файлы. Соглашение об использовании
Помещение свободного назначения, 44,6 м²

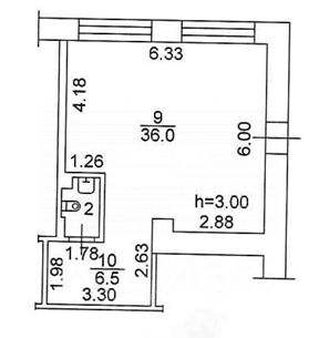
Продается помещение свободного назначения, 44,6 м²

Площадь44,6 м²
Этаж-1 из 5
Арт. 120210083 Продается нежилое помещение. Расположено по адресу: улица Елизаровых Д.51. На 1 этаже 5 этажного дома, общая площадь 44.6м2 . Отдельный вход, установлены бронированные окна, металлические надежные двери, сигнализация, кондиционер есть сан. узел. Помещение можно использовать под любую коммерцию (магазин, парикмахерская, офис и т.д.). Отличная локация расположено недалеко от вокзала Томск 1. Возможна аренда
lock

Войдите или зарегистрируйтесь
для просмотра информации

Просматривайте условия сделки и всю информацию об объекте
Сохраняйте фильтры в поиске и не вводите заново
Доступ к избранному с любого устройства
Неограниченное добавление в избранное
Позвоните автору
Вам ответят на все вопросы
Остались вопросы по объявлению?
Позвоните владельцу объявления и уточните необходимую информацию.
  • Инфраструктура
  • Похожие рядом
  • Общая площадь44,6 м²
Центральное отопление
Помощь надёжных риелторов
Риелтор партнёр Циан поможет купить или продать любую недвижимость
Документы проверены
5 500 000 ₽
73 451 $
62 659
Цена за метр
123 319 ₽
Налог
НДС включен: 991 803 ₽
Агентство недвижимости
Документы проверены
На Циан
7 лет
Объектов в работе
320