Мы используем куки-файлы. Соглашение об использовании
Помещение свободного назначения, 83,2 м²

Продается помещение свободного назначения, 83,2 м²

Площадь83,2 м²
Этаж2 из 2
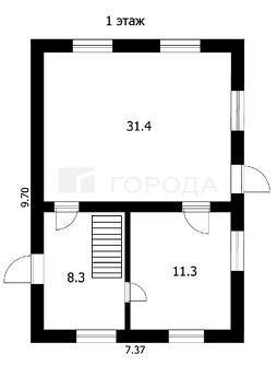
Код объекта: 1532970. Рассмотрите уникальную возможность приобрести многофункциональный объект недвижимости, идеально подходящий как для проживания, так и для ведения бизнеса. Вашему вниманию предлагается двухэтажный дом, расположенный на земельном участке в 7 соток, по адресу: 1-я Усть-Киргизка, с выгодным местоположением на главной улице. В состав недвижимости входят: двухэтажное здание, торговый павильон общей площадью 83,2 квадратных метра + 28 квадратных метров, кирпичный гараж на две машины площадью 46,1 квадратных метра, а также баня. К объекту подведены все необходимые центральные коммуникации: водопровод, электричество, автономное отопление (угольный и электрический котлы) и канализация; есть возможность подключения к газовой магистрали. Объект находится в частной собственности, юридически чист, без каких-либо обременений, все документы оформлены надлежащим образом, иметься ГПЗУ 2025 года. Мы открыты к обсуждению варианта обмена на квартиру с вашей доплатой. Не упустите свой шанс! Звоните в рабочее время с 09:00 до 19:00, чтобы договориться о просмотре объекта. Наши специалисты с удовольствием ответят на все ваши вопросы!
lock

Войдите или зарегистрируйтесь
для просмотра информации

Просматривайте условия сделки и всю информацию об объекте
Сохраняйте фильтры в поиске и не вводите заново
Доступ к избранному с любого устройства
Неограниченное добавление в избранное
Позвоните автору
Вам ответят на все вопросы
Остались вопросы по объявлению?
Позвоните владельцу объявления и уточните необходимую информацию.
  • Инфраструктура
  • Похожие рядом
  • Площадь участка7 сот.
  • Общая площадь83,2 м²
Автономное отопление
Помощь надёжных риелторов
Риелтор партнёр Циан поможет купить или продать любую недвижимость
12 800 000 ₽
175 037 $
150 265
Цена за метр
153 847 ₽
Налог
НДС включен: 2 308 196 ₽
Агентство недвижимости
Документы проверены
На Циан
3 года
Объектов в работе
323