106 944 ₽/м²
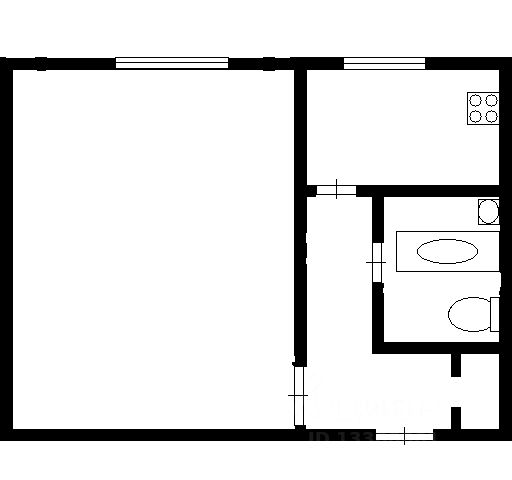
Не упусти возможность, стань обладателем квартиры прямо сейчас! Предлагается уютная однокомнатная квартира в центре Северска в кирпичном доме с высоким потолком и большими окнами. О ДОМЕ: Дом расположен около Администрации города, рядом с парком, ЦУМом. В шаговой доступности детский сад и школа, институт, кукольный театр, бассейн. На первом этаже располагаются нотариус и частная зубная клиника. Достаточно мест для парковки. В подъездах хороший ремонт, широкие марши, домофон. В 50-ти метрах автобусная остановка. О КВАРТИРЕ: Квартира окнами смотрит на запад. Зал с остеклённым балконом . Ремонт вполне добротный. Санузел совмещённый, но просторный, облицован современным кафелем. Сантехника, трубы, электопроводка поменяны. Высота потолков 3 метра, перекрытие железобетонное. Звукоизоляция отличная из-за большей толщины наружних и внутренних стен. О СДЕЛКЕ: Один собственник. Документы в наличии. Остаётся практически вся мебель. Долгов и обременений нет. Торг на месте. Звоните! Записывайтесь на показ объекта прямо сейчас. Рады будем ответить на все ваши вопросы. Арт. 67845967 Продается 1-комнатная квартира до 18 млн. рублей в Северске.
























































































