Хорошая цена
С мебелью
Только на Циан
4 550 000 ₽
87 165 ₽/м²
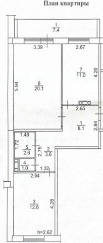
Продам или обменяю на Томск (на 2-хкомнатную) 3-хкомнатную тёплую, уютную, благоустроенную квартиру 52,2 кв. м с хорошим ремонтом на 2-ом этаже 2-хэтажного кирпичного дома по улице Таёжная 44 в районном центре Белый Яр Верхнекетского района. Квартира распашная, комнаты раздельные, санузел раздельный. В квартире натяжные потолки, в санузле - навесные, пол - ламинат, в санузле -плитка, межкомнатные двери современные, входная дверь в северном варианте, трубы пластиковые. В доме два подъезда, в подъезде 6 квартир, Соседи доброжелательные, дружные, соблюдают чистоту и порядок не только в доме, но и во дворе. Двор закрытый, летом высаживаются цветы. При квартире есть погреб. Рядом с домом имеется участок в собственности под ИЖС 5,03 сотки. На участке имеются большой гараж, крытый железным профилем, теплица 3x6 метров, баня, сарай, дровяник. Также имеются фруктово-ягодные насаждения, многолетние цветы, цветущие кустарники. Есть место и для посадки овощей. Фишкой участка является зона отдыха под берёзами, где можно семьёй отдыхать с шашлыками.








































































