Первичная продажа



С отделкой
5 890 950 ₽
162 554 ₽/м²
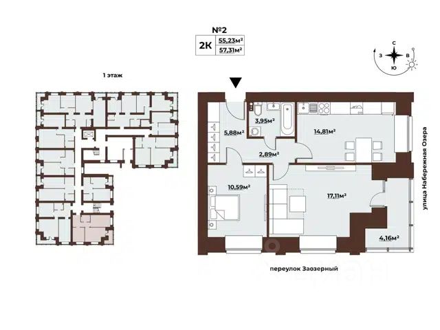
Квартира 96. Ботаника
— жилой комплекс из четырёх кварталов с собственными именами: Клен, Рябина, Кедр, Береза. Своё название Ботаника получила благодаря отличным экологии и розе ветров, природному ландшафту вокруг территории проекта и качественному озеленению кварталов.
Современная архитектура.
Проверенные временем решения индустриального домостроения получили развитие в новой улучшенной серии домов. Здания, возведённые по такой технологии, отличаются высокой степенью прочности и износа, а также отличной энергоэффективностью.
У домов Ботаники предусмотрены современные фасады. Они выглядят эстетично, гармонируют с дизайн-кодом среды и природными элементами. Жилой комплекс будет долгое время выглядеть современно и стильно.
Увеличены площади квартир и комнат, предусмотрены хозяйственные помещения и ниши.
Увеличены оконные проёмы. Света и пространства внутри стало гораздо больше.
В подъездах созданы сквозные проходы во двор и на улицу. Добраться до автомобиля будет быстро и удобно в любое время суток.
Новый дизайн входной группы и мест общего пользования выполнены по принципу безбарьерной среды.
Дворы без машин
Квартальный тип застройки с дворами без машин создаст полноценные пространства для игр, прогулок и отдыха. Во дворах будет безопасно, тихо и свободно. Для автомобилей жителей предусмотрены стояночные места по периметру жилых кварталов.
Озеленение.
В каждом квартале будут созданы целые биосистемы: деревья ценных пород, кустарники, газоны, клумбы, тропы с естественным покрытием. Растения будут дополнять друг друга и каждый сезон служить украшением. Дворы здесь станут островками гармоничной жизни.
Природный каркас проекта создан с учётом всех нюансов застройки. Дома объединены архитектурной концепцией, брендированием и управлением территорией.
Социальная инфраструктура
Развитие социальной инфраструктуры Ботаники утверждено трехсторонним соглашением между ТДСК, администрацией региона и мэрией Томска. В жилом комплексе разместят два детских сада и амбулаторно-поликлиническое медучреждение. В шаговой доступности работает школа 46 "Открытие", в образовательной концепции которой — синтез естественных и технических знаний.
Дороги и остановки
Продумано развитие транспортной инфраструктуры: проектируется дорога от ул. Мечникова до ул. Ивановского с тротуарами и остановками общественного транспорта. В 2024 году появится проезд между улицами Мечникова и Демьяна Бедного по территории жилого комплекса и завершится благоустройство территории, примыкающей к ЖК со стороны улиц Пришвина и Мечникова: тротуары замостят плиткой, выполнят твердое дорожное покрытие. Продам квартиру в новостройке в Томске.















































































































































