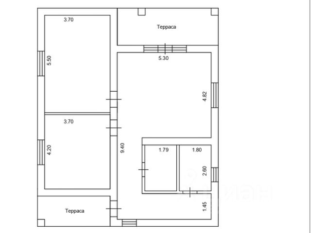
Арт. 127654786 Современный кирпичный коттедж - привлекательный вариантом для тех, кто мечтает о комфортном загородном жилье недалеко от города. Расположение - Охраняемый посёлок: Это обеспечивает безопасность проживания и спокойствие для вашей семьи. - Контролируемый въезд через шлагбаум: Дополнительный уровень защиты вашего имущества. - Непосредственная близость к лесу: Возможность наслаждаться природой и свежим воздухом каждый день. Планировка и отделка - Просторный холл на первом этаже создаёт ощущение простора и комфорта. - Большая гостиная-столовая с выходом на территорию: Идеально подходит для семейных ужинов и приёма гостей. - Гардеробная: Удобное хранение вещей и обуви. - Санузел с современной отделкой - Теплый гараж: Удобство для хранения автомобилей и дополнительного пространства. Верхний этаж - Спальные комнаты: Уютные помещения для отдыха и сна. - Детская комната: Специально оборудованное пространство для ребёнка. - Комната свободного назначения: Может использоваться как кабинет или хобби-комната. - Второй санузел: Удобства на втором этаже обеспечивают дополнительный комфорт. Дополнительные удобства - Зона отдыха: Место для релаксации и развлечений. - Бассейн (требует отделки): Потенциально идеальное место для активного отдыха и водных процедур. - Новая баня: Традиционное русское удовольствие и оздоровление. - Два гаража и парковка: Удобство для владельцев нескольких транспортных средств. Такой дом идеально подойдёт тем, кто ценит комфорт, безопасность и близость к природе. Если Вас заинтересовал этот вариант, свяжитесь с нами для организации просмотра. Мы готовы показать вам ваш будущий дом мечты! Звоните, пишите, записывайтесь на показ! Продается дом в сельском поселении Зоркальцевское Томского района.
























































































